Workplaces

三重県 伊賀市中央図書館様

~移転 及び アップサイクル~

地域のシンボルとして再生された文化財建築に図書館が移転
低コストの移設・再生を可能にした集密書架のアップサイクル


POINT
プロジェクト予算を有効に活用するためにも、
既存の部材を活かしたアップサイクルが効果を発揮。
建築の再生コンセプトにも合致し、操作性やメンテナンス性の向上を実現。


 本図書館の建物である三重県伊賀市の旧本庁舎(旧上野市庁舎)は、日本近代モダニズム建築家のひとり、坂倉準三氏により設計され、1964年に竣工、2018年に庁舎としての役割を終えました。2019年、伊賀市の有形文化財に指定され、改修により2025年に「SAKAKURA BASE」として、ホテルと交流施設がスタート。
 その後、別の場所にあった旧伊賀市上野図書館より運営が引き継がれ移転、伊賀市中央図書館として2026年に開館となりました。

 旧図書館の書庫では1984年から文祥堂の電動集密書架が使用されていました。移転にあたり、電動式からハンドル式へ「アップサイクル」を実施して生まれ変わることとなりました。
 設計にあたっては、移転先の書庫の空間に合わせ、躯体の凹凸や配管を考慮しつつも、最大限に空間を生かすレイアウトで書架を設置。23万冊を超える収納量を確保することができました。

 生まれ変わった閲覧スペースは、ゆったりとした空間に木製のインテリアが配置され、地域の皆様に開かれた開放的な空間となっています。
 建築の再生とともに、集密書架も環境負荷とコストを抑えて再生されました。これからも地域の皆様に愛される図書館に寄り添い、蔵書の保管をサポートしていきます。


上野城麓の傾斜に沿って建てられた建築
上階はホテル、半地下スペースに児童書のエリアが設けられている
閉架書庫に納入されたハンドル式集密書架
旧図書館から棚の部材を引き継いで再生

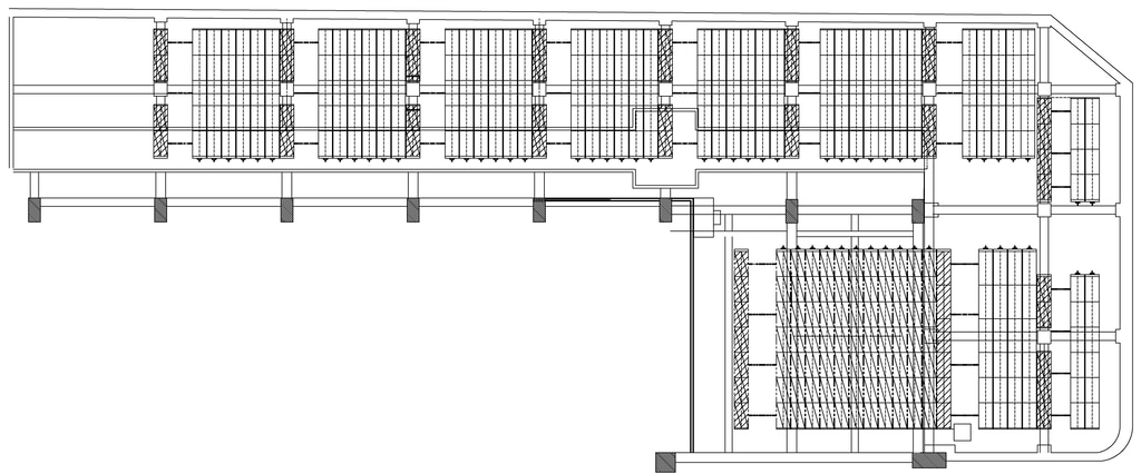
閉架書庫

旧図書館から移動書架を移設し、再配置した書庫。
十分な収納量を確保し、通路などはゆとりを持たせています。





スペース効率を追求

室内の配管、梁、機器類にあわせ緻密に設計しています。
空間を最大限に生かすレイアウトを実現。


集密書架のアップサイクル

棚本体の部材を流用し、操作機構を入れ替えて新図書館に移設
旧図書館に1984年に設置した電動式集密書架。
棚の支柱、棚板、台枠等の部材は、状態をチェックした上で、新図書館で再利用。

Before

電動式集密書架 エレコンパックリード
(1984年納入・旧伊賀市上野図書館)





▶︎
After

ハンドル式集密書架 コンパックルneo

旧伊賀市上野図書館



●1984年 旧伊賀市上野図書館竣工
       (電動式集密書架 エレコンパックリード 設置)
   ↓

●2026年 図書館移転
      集密書架も新図書館へ移設とともに、アップサイクル実施
            (ハンドル式集密書架 コンパックルneo)→







▶︎

旧上野市庁舎

 ●1964年 竣工
    ↓
 ●2018年 市庁舎としての役割を終える
    ↓
 ●2019年 建築が市の文化財に指定
    ↓
 ●2025年 SAKAKURA BASE 開業
    ↓
 ●2026年 伊賀市中央図書館 開館

環境負荷とコストを抑えて再生された集密書架。
地域の皆様に愛される図書館で、これからも蔵書の保管をサポートしていきます。

概 要


所在地:三重県伊賀市上野丸之内116

納入年:1984年(旧伊賀市上野図書館)電動式移動棚エレコンパックリード

移設およびアップサイクル納品年:2026年2月

設置面積:閉架書庫  約400㎡

設計者:MARU。architecture

建設会社:船谷建設・伊藤工務店・上野ハウス

納入品目:ハンドル式集密書架 コンパックルneo

収納物:書籍、雑誌、新聞等

収納量:約230,000冊


CONTACT
オフィス移転やリニューアルをご検討の方は
お気軽にお問い合わせください